WICP Payson Central Tech

Our newest development featuring 900,000 SQFT on 1-15. Ground breaking fall 2025 and preleasing today

Inland Port

〰️

Free Trade Zone

〰️

Inland Port 〰️ Free Trade Zone 〰️

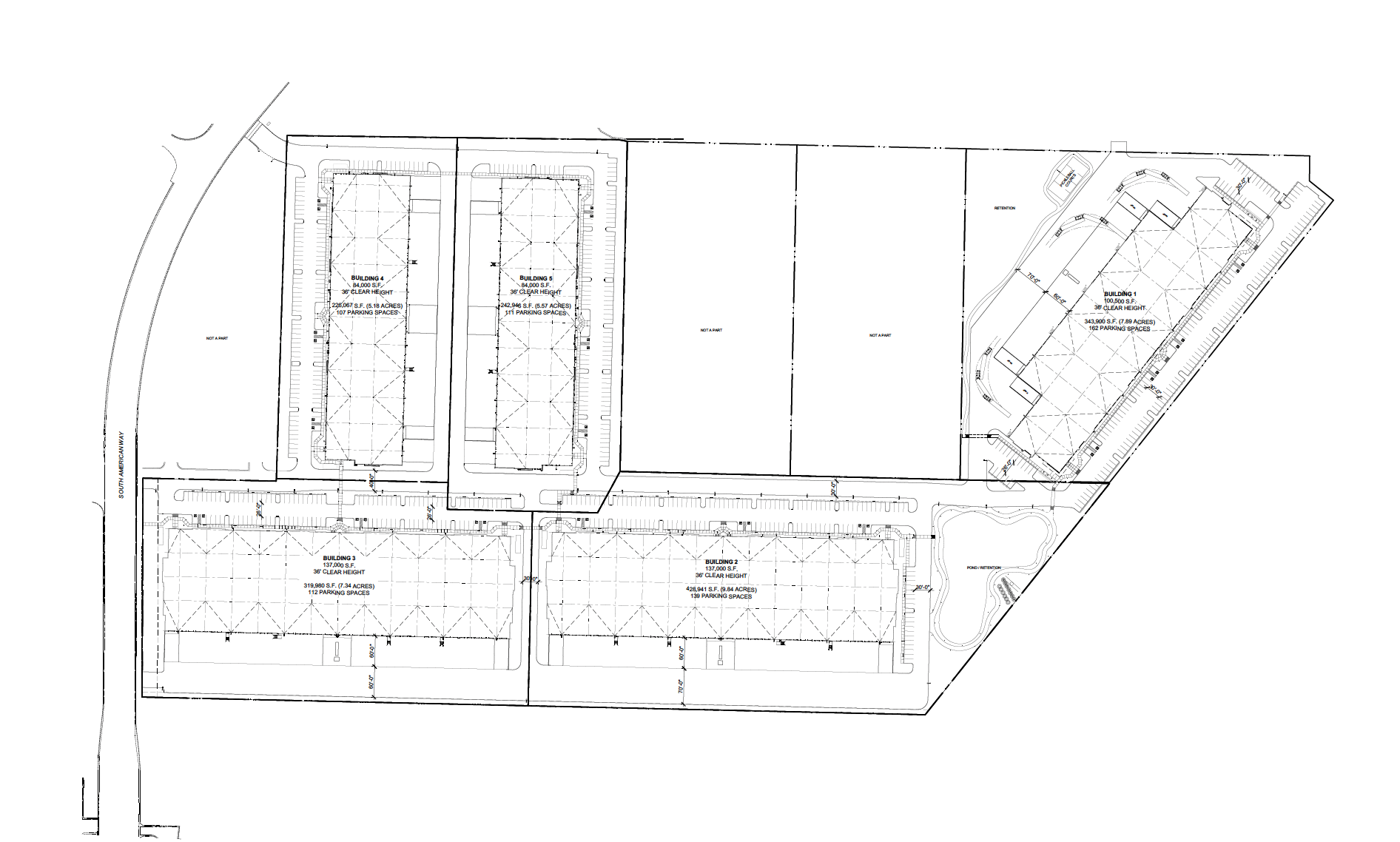
Welcome to Payson Central Tech – WICP’s newest premier development, strategically located with exceptional I-15 frontage. Spanning over 900,000 square feet across five state-of-the-art buildings, this project sets a new standard for industrial space.

Our campus features buildings ranging from 100,000 sq. ft. to 150,000 sq. ft. —all Type A industrial facilities designed with the look and feel of high-end office space. Built to the highest construction standards, Payson Central Tech provides the perfect environment for businesses seeking quality, visibility, and growth.

Call us today to create a custom TI buildout that supports your operations and fuels your success

  • Inland port

  • Free Trade zone

  • I15 Crown Signage

  • Factory Mutual Specifications

  • ESFR Fire sprinklers

  • Column Width 56 Feet

  • 2000 Amps at 480

  • LED Motion Activated Lighting

Property Features

  • Ramp Access With Oversized doors

  • 36 FT Clear Height (40 FT in Some Areas)

  • Pro Business Environment

  • Close Proximity to UVU and MTech Campus

  • Docks- Auto Levelers, Skirts, Bumper Stops, Effective Drains, 18” Concrete Landing

  • Speed Bays On Each End Unit With Low Stress Ramps For Flatbed Inside Access Loading and Unloading

  • Recreational Courts and Walking path with Pond

 

Contact Us

Interested in working together? Fill out some info and we will be in touch shortly. We can’t wait to hear from you!